Born on June 24, 1982, in Valjevo, Filip Narančić turned his passion for architecture and design into a thriving career. He graduated from the Faculty of Technical Sciences in Novi Sad, Department of Architecture and Urbanism. During his studies, he launched a pilot project that later evolved into today’s Infinity Design Studio.
Challenge:
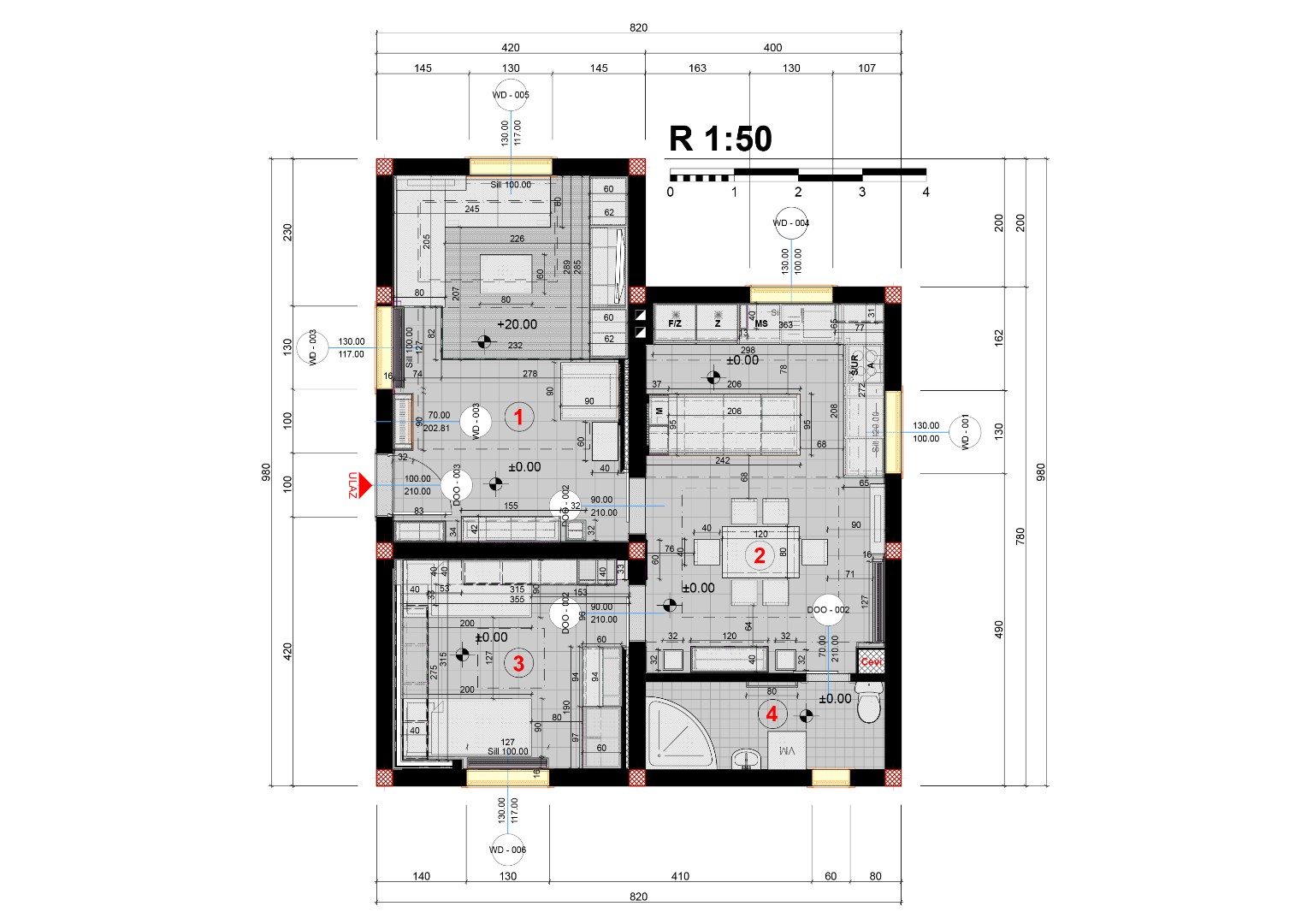
The family house in Mionica required a complete interior transformation in order to create a modern and functional living space tailored to the needs of a married couple from Belgrade with two children.
Key challenges included:
-
Transforming a traditional weekend house into a modern open space living environment
-
Improving spatial organization for maximum usability and comfort
-
Creating a consistent and refreshed interior atmosphere
-
Integrating multifunctional storage solutions into limited space
-
Ensuring that all interior areas meet both aesthetic and functional requirements
Solution:
A comprehensive interior design and execution strategy was implemented to enhance space utilization and visual harmony:
-
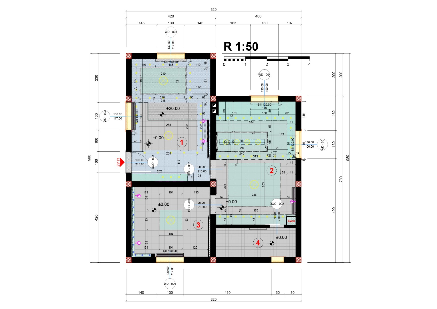
Developed full 3D interior visualizations to support client involvement during the design process
-
Reorganized spatial layout to create an open space living area on a raised platform
-
Designed hallways with built-in closets and integrated mirror elements
-
Implemented multifunctional design features such as drawers, shelving units, and hidden storage
-
Applied a balanced combination of warm tones and ambient lighting to improve atmosphere
-
Executed turnkey project elements including dropped ceilings, lighting installation, custom carpentry, furniture production, painting, decoration, and textile integration
-
Prepared all required technical documentation including furniture layouts, floor plans, electrical schemes, socket positioning, custom-made furniture details, and heating and ventilation plans
Result:
Through careful planning and professional execution, the family house in Mionica was successfully transformed into a modern and functional family home.
Key outcomes:
-
Improved usability and spatial organization throughout the interior
-
Enhanced living experience through open layout design
-
Seamless integration of custom-made furniture and storage solutions
-
Consistent aesthetic identity across all interior areas
-
Functional and visually balanced environment tailored to everyday family needs
The Team Behind the Project - Led by Creative Director
The Team Behind the Project:
Every Infinity Design Studio project is personally led and directed by Filip Narančić – Founder & Creative Director.
With a unique blend of creativity, strategy, and precision, Filip ensures that each project delivers premium quality, timeless design, and measurable impact.
Infinity Design Studio operates with a boutique approach, where every detail is carefully crafted, and each solution is tailored to the client’s vision and market demands. By combining multidisciplinary expertise with hands-on leadership, the studio transforms every project into a distinctive brand experience.
Filip Narančić
Founder & CEO – Infinity Design Studio
SPECIALIZED IN:
Short biography
Testimonials
I NEED MORE THAN 5 STARS TO RATE FILIP. His relentless commitment and creativity made thisproject a dream come true. Highly recommended!
Wong.Jameson
UNO DOGGO
We needed a new label for our maple syrup. From start to finish, Filip was right on top of the design, anychanges we requested, and was extremely good at communicating. We loved his style and highly recommend working with him!
The Gateway Farm
THE GATEWAY FARM
Filip has done excellent work for our project! He’s quick and delivers great designs. Very attentive, very easy to work with, listens to and understands what I am trying to get done immediately. Thanks! Happy to work with him again!
Maike.Rummich
A&O HOTELS and HOSTELS
This designer is AMAZING! I can’t believe how easy it was to work with him on all the changes we madeto our box. He was so positive and encouraging, with great design ability! Highly recommended!
XoginaU
Dr. P RX
Worked perfectly together and carried out extremely quickly with corrections and changes.
MarceQ
BRAUEREI 2572
“Filip is an extremely talented designer. He was a pleasure to work with throughout this process. In addition to being very responsive, he was able to take a general idea and turn it into something we truly loved. Highly recommend!”
Jrossd
ECOMMDISTRIBUTION, ASHBROOK OUTDOORS
Filip is a very enthusiastic designer, proactively looking for various solutions and flexible in terms ofworking and communication. I am very pleased with the final design and our teamwork!
JaanP
LUCIDKITCHEN
I really enjoyed working with Filip. He is very hardworking, and the service is truly excellent!
AromapetD
AROMAPET
Filip was wonderful to work with! As a first-timer in product packaging design, I just asked for eye-catching packaging. He exceeded all of our expectations, and we highly recommend working with Filip – you won’t be disappointed!
Fatime.Perazic
TRIDENT POSEIDON
Excellent professional, quick service. We recommend working with him!
Moltres
BROMELIFE
This designer’s professionalism and creativity are truly commendable. We’re delighted with his work andhighly recommend collaborating with him. His talent and dedication consistently deliver outstandingresults.
Harmouch.Fk
NUTRIVEG LAB
EXCELLENT!!! Filip is the best designer and even the best contractor I have ever worked with. Hecreated an awesome design and worked with me tirelessly from its greatness to its perfection. Now I havethe most gorgeous packaging on the market, and all my competitors are screwed. Hooray :-)!
Jakub.Novotny7
COPPER GEMZ
Proud Clients
Ready To Elevate Your Brand’s Packaging To Premium Status?
Let’s turn your vision into reality with premium design solutions crafted for impact and excellence.
Explore More Stunning Work
Let’s Create a Premium Design Experience
Infinity Design Studio is ready to turn your ideas into powerful results. Share your vision with us and let’s begin building something extraordinary together.




















































