Born on June 24, 1982, in Valjevo, Filip Narančić turned his passion for architecture and design into a thriving career. He graduated from the Faculty of Technical Sciences in Novi Sad, Department of Architecture and Urbanism. During his studies, he launched a pilot project that later evolved into today’s Infinity Design Studio.
Client
Private Client
Project Type:
Architectural Interior Design & Residential Planning
Industry:
Challenge:
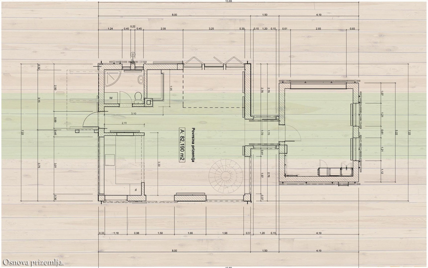
The family house located in Čortanovci required an interior design solution that combines modern aesthetics with functional living spaces suited for everyday family life.
Key challenges included:
-
Creating a warm and comfortable environment while maintaining a minimalist contemporary design
-
Ensuring optimal spatial organization across living, dining, kitchen, and private zones
-
Integrating custom-made furniture into a cohesive architectural concept
-
Enhancing the connection between ground floor and upper gallery level
-
Utilizing natural materials to achieve visual harmony
-
Designing functional yet visually appealing spaces for both adults and children
Solution:
A comprehensive interior design strategy was implemented to improve usability and aesthetic balance:
-
Developed detailed site layout and ground floor zoning plans
-
Designed lighting layout to ensure functional and ambient illumination
-
Integrated furniture arrangement plans to enhance spatial comfort
-
Applied natural wood textures combined with clean, bright surfaces
-
Introduced orange accent elements to add warmth and visual energy
-
Designed an open living area with double-height ceilings
-
Installed a natural stone fireplace as a central design feature
-
Integrated a spiral staircase with wooden steps leading to a gallery workspace
-
Developed a compact kitchen with a functional island
-
Designed a master bedroom with custom-built furniture and calming tones
-
Created a modern bathroom with optimized storage and floor-to-ceiling ceramic finishes
-
Designed a children’s room with colorful elements and a dedicated study area
-
Integrated outdoor features including a swimming pool, garden zones, and shaded pergola
Result:
Through the implementation of a carefully planned interior concept, the family house achieved improved functionality and visual harmony.
Key outcomes:
-
Enhanced usability of open-plan living spaces
-
Strengthened visual connection between interior levels
-
Improved comfort through custom-made furniture and lighting solutions
-
Consistent aesthetic identity throughout the home
-
Delivered a modern and welcoming residential environment tailored to family needs
The Team Behind the Project - Led by Creative Director
The Team Behind the Project:
Every Infinity Design Studio project is personally led and directed by Filip Narančić – Founder & Creative Director.
With a unique blend of creativity, strategy, and precision, Filip ensures that each project delivers premium quality, timeless design, and measurable impact.
Infinity Design Studio operates with a boutique approach, where every detail is carefully crafted, and each solution is tailored to the client’s vision and market demands. By combining multidisciplinary expertise with hands-on leadership, the studio transforms every project into a distinctive brand experience.
Filip Narančić
Founder & CEO – Infinity Design Studio
SPECIALIZED IN:
Short biography
Testimonials
EXCELLENT!!! Filip is the best designer and even the best contractor I have ever worked with. Hecreated an awesome design and worked with me tirelessly from its greatness to its perfection. Now I havethe most gorgeous packaging on the market, and all my competitors are screwed. Hooray :-)!
Jakub.Novotny7
COPPER GEMZ
Filip was wonderful to work with! As a first-timer in product packaging design, I just asked for eye-catching packaging. He exceeded all of our expectations, and we highly recommend working with Filip – you won’t be disappointed!
Fatime.Perazic
TRIDENT POSEIDON
This designer’s professionalism and creativity are truly commendable. We’re delighted with his work andhighly recommend collaborating with him. His talent and dedication consistently deliver outstandingresults.
Harmouch.Fk
NUTRIVEG LAB
This designer is AMAZING! I can’t believe how easy it was to work with him on all the changes we madeto our box. He was so positive and encouraging, with great design ability! Highly recommended!
XoginaU
Dr. P RX
Worked perfectly together and carried out extremely quickly with corrections and changes.
MarceQ
BRAUEREI 2572
I NEED MORE THAN 5 STARS TO RATE FILIP. His relentless commitment and creativity made thisproject a dream come true. Highly recommended!
Wong.Jameson
UNO DOGGO
“Filip is an extremely talented designer. He was a pleasure to work with throughout this process. In addition to being very responsive, he was able to take a general idea and turn it into something we truly loved. Highly recommend!”
Jrossd
ECOMMDISTRIBUTION, ASHBROOK OUTDOORS
Filip has done excellent work for our project! He’s quick and delivers great designs. Very attentive, very easy to work with, listens to and understands what I am trying to get done immediately. Thanks! Happy to work with him again!
Maike.Rummich
A&O HOTELS and HOSTELS
Excellent professional, quick service. We recommend working with him!
Moltres
BROMELIFE
I really enjoyed working with Filip. He is very hardworking, and the service is truly excellent!
AromapetD
AROMAPET
We needed a new label for our maple syrup. From start to finish, Filip was right on top of the design, anychanges we requested, and was extremely good at communicating. We loved his style and highly recommend working with him!
The Gateway Farm
THE GATEWAY FARM
Filip is a very enthusiastic designer, proactively looking for various solutions and flexible in terms ofworking and communication. I am very pleased with the final design and our teamwork!
JaanP
LUCIDKITCHEN
Proud Clients
Ready To Elevate Your Brand’s Packaging To Premium Status?
Let’s turn your vision into reality with premium design solutions crafted for impact and excellence.
Explore More Stunning Work
Let’s Create a Premium Design Experience
Infinity Design Studio is ready to turn your ideas into powerful results. Share your vision with us and let’s begin building something extraordinary together.















































































































































































